| メロディーハイム千里東 |
|
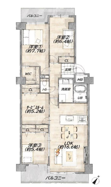
物件タイプ
中古マンション
所在
吹田市山田東1
アクセス
阪急電鉄千里線 山田
(
徒歩 28分 )
(
バス 7分
阪急バス 新小川 バス停まで徒歩 3分 ) 大阪モノレール本線 山田 ( 徒歩 29分 ) ( バス 7分 阪急バス 新小川 バス停まで徒歩 3分 ) 学校区
山田第一小学校
山田東中学校 |
築年月
1989年7月(平成元年7月)
構造 / 階建
鉄筋コンクリート造(RC) / 15階建
|













|
|
